
| Прочие | ||
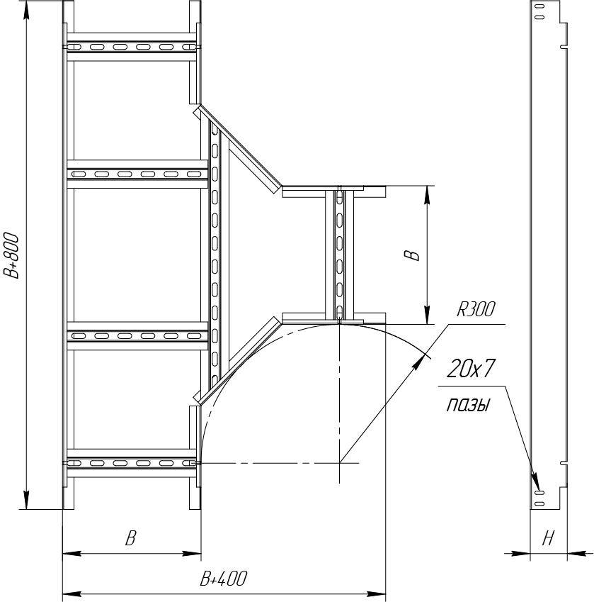
| Артикул | 727657 | |
| Тип покрытия | Нержавеющая сталь AISI 304 | |
| Вес, кг/шт | 5,81 | |
| Высота борта (Н), мм | 150 | |
| Ширина основания (В), мм | 500 | |
| Толщина (S), мм | 1 | |
|
Все права защищены. |
+7 (499) 284-00-88 Email: info@st-electric.ru |
